御殿場神山平中古住宅

中古一戸建て(中古住宅)

御殿場神山平中古住宅

御殿場市神山平の閑静な住宅街の日当たりの良い4LDKの中古住宅です

中古一戸建て おすすめ
物件公開日: 2026年02月13日 / エリア: 御殿場市
  • ポイント

    イルミネーションで有名な御殿場高原「時の栖」やゴルフ場にも近い永住でも別宅でもおススメ物件です。

     

  • 1,650万円
    建物名・区画番号 御殿場神山平中古住宅
    物件番号
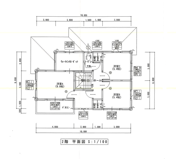
    間取り 4LDK+WIC

    築年月 築19年

    2007年3月

    2階建
    主要採光面
    交通
    • JR御殿場線/富士岡駅 車で3分
    学区校
    • 御殿場市 富士岡中学校
    • 御殿場市 神山小学校
    所在地 静岡県御殿場市神山平
  • 費用

    価格 1,650万円
    土地権利 所有権
  • 物件概要

    設備・特徴 システムキッチン/バス・トイレ別/フローリング/駐車場2台分
    建物面積 200.92m2
    接道状況

    二方

    北東側 13mの 公道に 12.5m接道

    南西側 6mの 公道に 11.74m接道

    登記地目 宅地
    地勢 傾斜地
    都市計画 市街化調整区域
    建ぺい率 60
    容積率 200
    建物構造 木造軸組工法(在来工法)
    駐車場 駐車場あり
    現況 所有者居住中

    引渡  相談

    各種設備等 水道(公営)/排水(浄化槽)/プロパンガス
    取引態様 専属専任
    備考 二方向道路に面しており、堀車庫含む駐車場2台可能です