沼津市中瀬町売店舗・居宅

売店舗付住宅(空き店舗・テナント)

沼津市中瀬町売店舗・居宅

店舗付き住宅(4LDK)駐車場4台

売店舗付住宅
物件公開日: 2025年08月28日 / エリア: 沼津市
  • ポイント

    現況の侭での引き渡しとなります。

    風呂リフォーム済

  • 3,500万円
    物件名・部屋番号 沼津市中瀬町売店舗・居宅
    物件番号
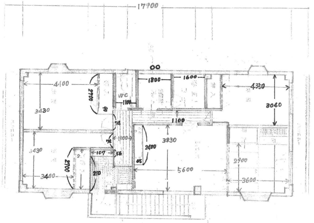
    間取り 4LDK

    築年月 築29年7ヶ月

    1996年8月

    2階建
    主要採光面
    交通
    • JR東海道本線/沼津駅 JR沼津駅から車で9分
    学区校
    • 沼津市 第四中学校
    • 沼津市 第四小学校
    所在地 静岡県沼津市中瀬町

リフォーム・リノベーション

リフォーム水回り
  • 浴室
  • 施工完了: 20258
  • 費用

    価格 3,500万円
    土地権利 所有権
  • 物件概要

    出店可能業種 美容室・理容室/エステサロン/その他サロン/マッサージ・整体院/歯科/病院・クリニック/美容・医療・介護その他/ファッション・雑貨/小売・物販その他
    状態・特徴 看板取付スペースあり/シャッター付き/冷暖房あり/複数台駐車可
    建物面積 231.28m2
    土地面積 260.62m2 (公簿)
    接道状況

    一方

    北側 18mの 公道に 10m接道

    登記地目 宅地
    地勢 平坦
    都市計画 市街化区域
    用途地域 第1種住居地域
    建ぺい率 60
    容積率 200
    工事完了年月 2025 8
    建物構造 鉄骨造(S造)
    法令上制限等 景観法
    都市再生機構
    建築基準法22条区域
    駐車場 駐車場あり

    店舗前4台

    現況 空家

    引渡  相談

    取引態様 専属専任